gliwice
Lokalizacja: Gliwice
Powierzchnia użytkowa: ok. 26 000 m2
Data: 2025
Inwestor: ZBM II TBS Gliwice
Status: w trakcie realizacji
Autorzy: Marcin Major, Anna Major, Marta Górniak, Alicja Miasik, Przemysław Spadło, Julia Przygoda, Renata Wacławowicz, Sara Korżyńska, Piotr Tymcio, Kinga Zemła
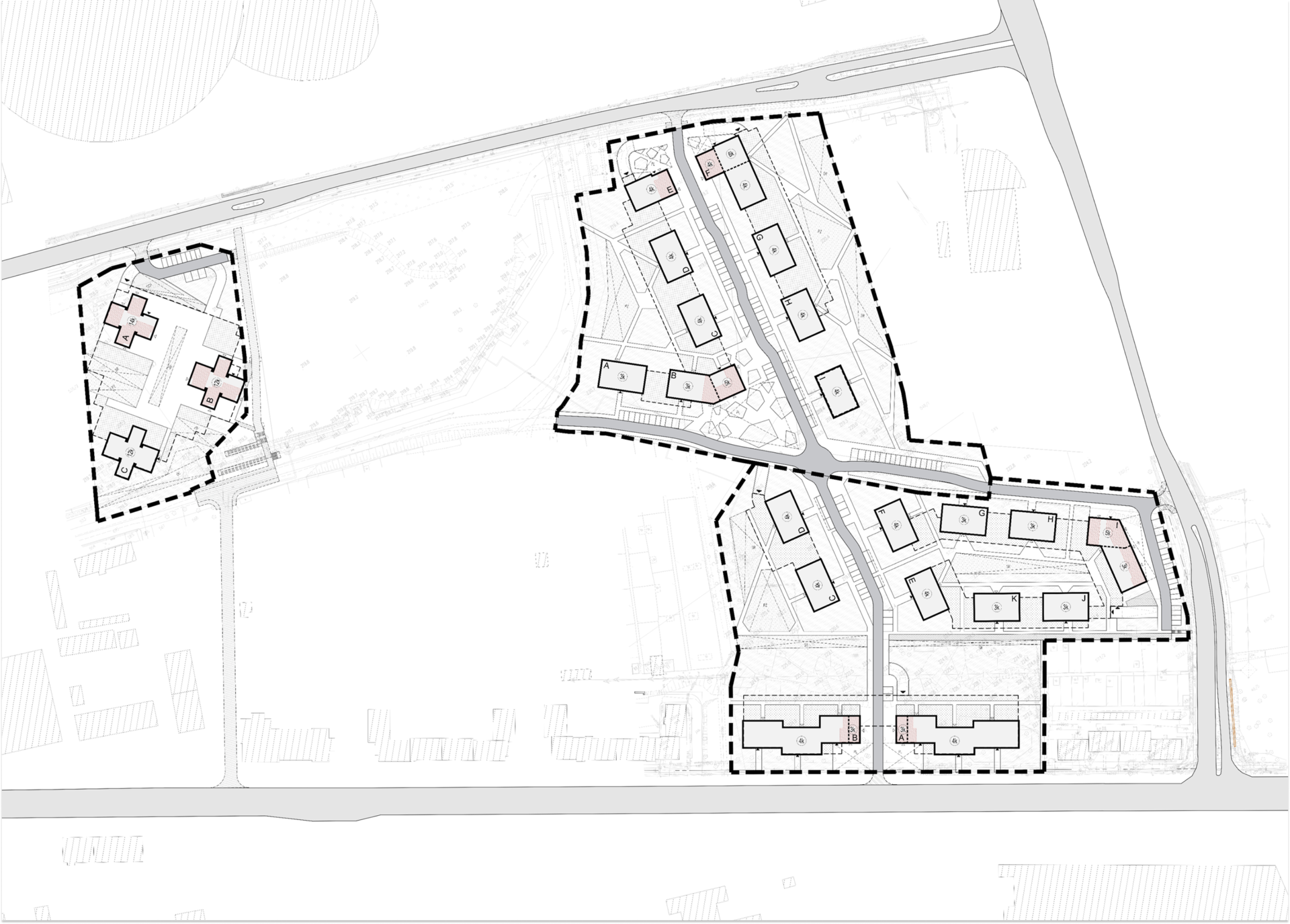
KONCEPCJA URBANISTYCZNO-ARCHITEKTONICZNA KOMPLEKSU BUDYNKÓW MIESZKALNYCH TBS W GLIWICACH
Projekt osiedla opiera się na czytelnym układzie kompozycyjnym, którego kręgosłup stanowi droga wewnętrzna łącząca kolejne etapy. Przecinające ją osie prowadzą do centralnego placu – serca założenia. Priorytetem było stworzenie przestrzeni wspólnych i ulic sąsiedzkich w dużej mierze wolnych od ruchu samochodowego, który kierowany jest do garaży podziemnych przy wjazdach. Istotnym założeniem jest zachowanie jak największej liczby istniejących drzew, które przenikają place i ścieżki, kształtując charakter miejsca.
Forma zabudowy odpowiada zróżnicowanemu otoczeniu oraz planowanemu rozwojowi obszaru, obejmującemu zieleń parkową, usługi i przyszły węzeł przesiadkowy z intensywnym ruchem pieszym. W centrum zaprojektowano niskie, kameralne budynki wpisane w zieleń, nawiązujące do historycznych osiedli śląskich i niemieckich. Bliżej areny pojawia się zabudowa punktowa o bardziej wielkomiejskim charakterze.
Duże odległości między budynkami zapewniają komfort użytkowania przestrzeni, umożliwiają kształtowanie placów i wnętrz kwartałów oraz dobre nasłonecznienie mieszkań. Lokalnie podwyższone budynki akcentują węzły kompozycyjne, a wyraźne „bramy” prowadzą w głąb osiedla.
Usługi zlokalizowano przy głównym ciągu pieszo-jezdnym, aby aktywizowały przestrzeń publiczną. Projekt uzupełniają rozwiązania spowalniające ruch, miejsca spotkań oraz działania proekologiczne: OZE, duża powierzchnia biologicznie czynna i retencja wód opadowych.



